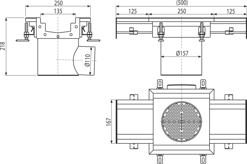
Промисловий точковий зливний трап з коробчатим впуском 250×250-135, нержавіюча сталь AISI 304

APR6-1211-135

Швидкість стоку води324 l/min
Висота водяного стовпа мокрого гідрозатвора50 mm
  • Для водовідведення великих промислових об'єктів, а також інших комерційних об'єктів всередині будівель, наприклад, в хімічній і харчовій промисловості
  • Для водовідведення великої кількості води, підходить і для великої відстані
  • Трап ​з нержавіючої сталі, обробленої методами травлення і пасивації, що гарантує збереження властивостей нержавіючої сталі і її функціональність протягом багатьох років
  • Вся система міцно закріплена в бетоні за допомогою регульованих ніжок і бічних анкерів
  • Висока швидкість водовідведення
  • Регульована висота в діапазоні 80-125 мм
  • Використовувана прокладка забезпечує повністю водонепроникне з'єднання
  • Матеріал трапа: нержавіюча сталь 1,5 мм, DIN 1.4301
  • EN 1253-1
Кількість (упаковка) 1 шт
Кількість (піддон) - шт
Розміри (шт.) 218×500×250 MM
Вага (шт.) 5,5735 кг
Вага (упаковка) 5,5735 кг
Вага (піддон) - кг
  • злив
  • Ноги 4 шт.
  • Прокладка 2×30×2
  • Гідрозатвор
  • Кошик для збору сміття
  • Монтажний комплект
КодEANТехнический лист
APR6-1211-1358595580573461Technický list